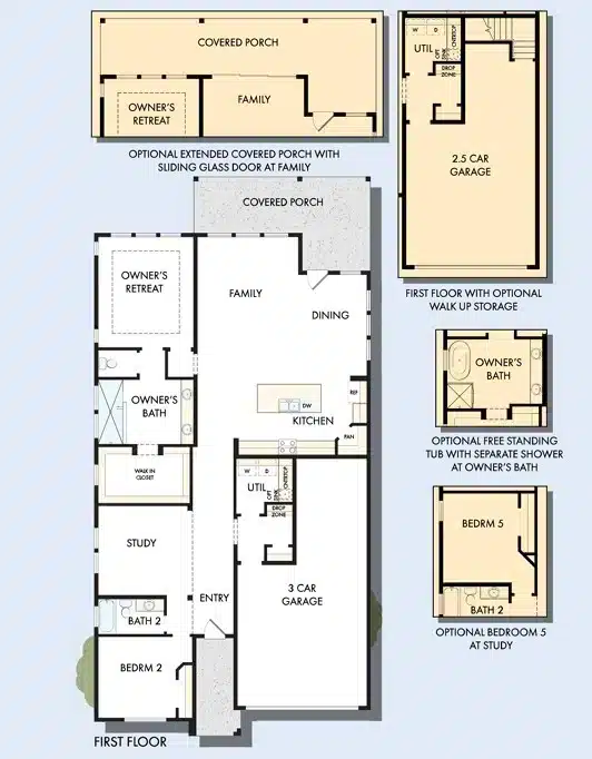
The Ancrum floor plan by David Weekley Homes in Kissing Tree presents lifestyle refinements for special occasions and everyday comfort. Your interior décor style will be right at home in the versatile family and dining spaces.
Share snacks and chat around the contemporary kitchen’s center island …
Overview
$444,990
2012 – 2075
2-3
2
3
1
David Weekley Homes
FLOOR PLAN